@ Alapakkam
A new way of living – stylish apartments designed with modern comfort and elegant charm.
Perfect Residential
Under CMDA approval, crafted to be the perfect residence for discerning and educated professionals
Connectivity
The project offers excellent connectivity with Alapakkam, ensuring seamless access to every convenience.”
Chennai Headquarters
Headquarters for refined urban living, strategically placed at Alapakkam, Chennai.





Project Info
Features : Experience elegant living with a grand entrance, stylish French balconies, and modern open kitchens. Enjoy secure and convenient facilities with flexible parking, 24/7 CCTV, lifts, and inverter provisions. Crafted with premium finishes like 304 steel railings, designer foyer lighting, and artistic wall sculptures for a touch of class
Project Location
#11, Periyar Street,Rajiv Gandhi Nagar, Alappakkam, Chennai-600095
Project Type
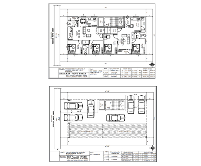
G+2 Apartments in Alapakkam – 5 Spacious 2BHK Homes with Car Parking
Project Name
SRISARA Powered by KMR Value Homes
Project Status
General Progress